Hull i taket minimum: 1390 x 1480 mm + andre størrelser, Høyde: 245,0-322,0 cm, Trappelengde U-180: 750 / 750 / 750 mm. Steghøyde: Justerbar 17.5 / 23.0 cm, Konfigurasjon: mulig 52 systemer av trapper,
Settet inneholder 13 elementer for selvmontering, selv om produsenten også tilbyr en profesjonell forsamlingstjeneste, gitt over hele landet. Et moderne sett av modulære trapper laget av to typer materialer: massivt tre med en farge å velge mellom produsentens palett og satin stål.
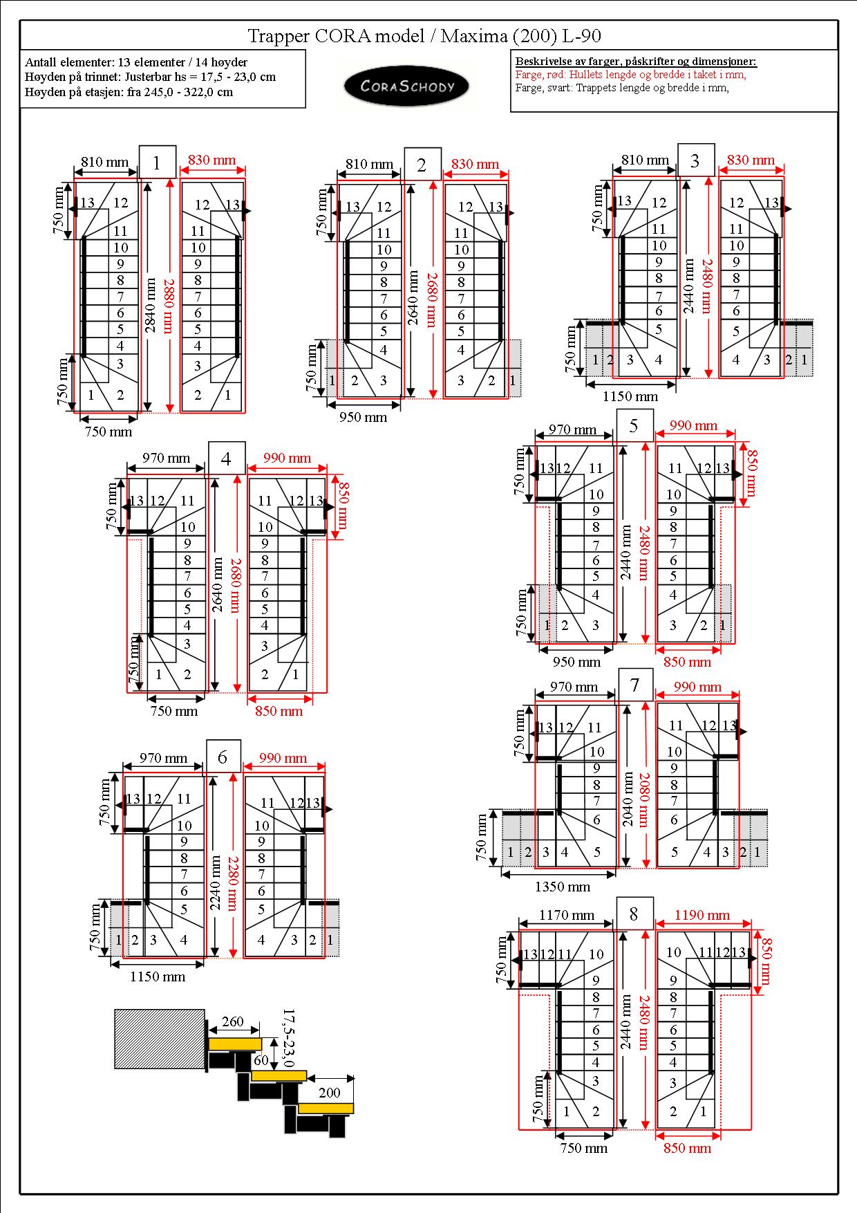
Trappene har en U-180 torsjonsprosedyre (venstre og høyre), men produsenten gjør det mulig å bestille en enkel prosedyre etter å ha gitt et slikt behov i bestillingen. Trappene i denne modellen har 13 elementer som bygger 14 trappnivåer, noe som gir mulighet til å skape opptil 52 trappesystemer etter montering.
Korrekt trapper skal løpe 5 centimeter fra veggen, minst en side, slik at de kan festes på ankrene. Hvis veggen er for svak for dette, bør strukturen støttes av en støttesøyle. For frittstående trapper, er det nødvendig å installere en dobbeltsidig rekkverk i tillegg til støttestangen.
Beskrivelse Parametre, søknad
Søknad: indre trapper (inne i bygningen)
Lastkapasitet: Vinkeltrappens maks belastning: 190 kg
Vekt: sett med trapper / sett med 12 elementer 205 kg
Type: en stråle (modulær) trapp
Type bruk: Modulære trapper, universell innstilling og applikasjon, rett, venstre, høyre, høyrehendt
Type rom: for små, mellomstore og store rom
Konfigurasjon: oppsett og mulig bruk av trapper i 24 systemer
Garanti: for lakk 12 måneder. For hele settet. trapp 52 måneder
Etterbehandling: stenger, horisontal
Produsenten: Polsk produsent av modulære trapper, metall CORA system
Størrelseseksempler:
Gulv til gulv 193 - 253 cm - 10 trinn / 11 høyde (- 3 trappetrinn)
Gulv til gulv 210 - 276 cm - 11 trinn / 12 høyde (- 2 trappetrinn)
Gulv til gulv 228 - 299 cm - 12 trinn / 13 høyde (- 1 trappetrinn)
Gulv til gulv 245 - 322 cm - 13 trinn / 14 høyde (Standard)
Gulv til gulv 263 - 345 cm - 14 trinn / 15 høyde (+ 1 trappetrinn)
Gulv til gulv 280 - 368 cm - 15 trinn / 16 høyde (+ 2 trappetrinn)

Åpning i taket: 1390 x 1480 mm minimum,
Bredden av trappen:
- behandling, vridning U-180: 750 / 750 / 750 mm
Type konstruksjon; Modulær metall 200
Metal farge: stål sateng (edesthal)
Tre type: Beech solid,
Trefarge (farge): Illustrasjonsbilde (på bøk, Brąz Br-2441) eller andre farger fra trefargepaletten eller mattmaling acc. RAL
Enkeltsidig rekkverk: Ensidig rekapabel, fra første til øverste trinn, inkludert / med rekkverk på innsiden
Beskrivelse rekkverk:
Innlegg 25 mm,
Fylling stenger rustfritt stål kutt (5 stk),
Håndløper i massiv bøk / diameter 50 mm
Trapper uvanlig dimensjon til ordningene
mindre du kan justere i henhold til følgende tidsplaner av trapper vil gjøre trappen uvanlig dimensjon.
Gjennomføre prosjektet, verdsettelsen av trinnene på grunnlag av:
- sendt kaster med ekte tverrsnitt av bygnings dimensjoner
- vennligst eller å lage en skisse med dimensjoner på faktiske og sende e-post: post@coratrapp.no
Vi forbereder et spesielt tilbud i vår nettbutikk.
KONTAKT - tekniske råd:
Til tider: 9,00 til 20,00 h.
Sluttdato:
- Levering uten montering - 2 / 3 uke
- Levering montering - 3 / 6 uker
PL. Konfiguracja układ schodów
NO. Konfigurasjon av systemer trapper
SE. Konfigurasjon av trappoppsett
GB. Configuration of stair layouts



PL. Ulotka
NO. Pakningsvedlegget
SE. Bipacksedel
GB. Leaflet

